Library Information
- Research/Home
- Library Information
- Services
- Ask A Librarian
- How Do I?
- Mesa Wifi
- Cite Sources
- Faculty Resources
- LRAS Contacts
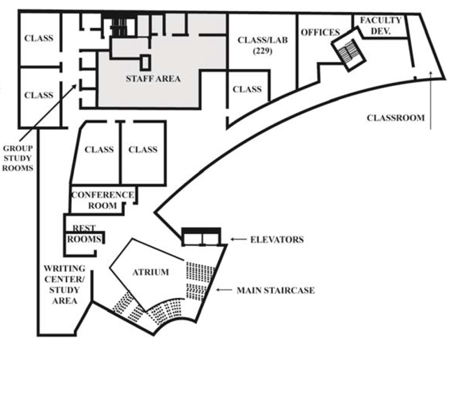
Library Floor Plans
Library
Floor Plans
1st Floor

2nd Floor

3rd Floor

4th Floor

